R65 GLB
FULL満室御礼★満室御礼★
GLB 2+2方式を採用した
趣味と暮らす賃貸ガレージハウス
| 賃料 | 10万円 |
|---|---|
| 所在地 | 静岡県浜松市東区笠井町1560-1 |
空室状況
| 部屋 | 面積 | 空室 |
|---|---|---|
| 01 | 2×4(+ロフト)/52.8㎡ | — |
| 02 | 2×4(+ロフト)/52.8㎡ | — |
ご入居希望、内覧希望、その他のお問い合わせはこちらから
2017年3月、静岡県で『balance GLB』に続き、浜松市東区笠井町に誕生したのが賃貸ガレージアパート『R65 GLB』です。
DAYTONA HOUSE×LDKのスタンダードなGLB仕様をベースにしながら、ガレージ奥にストレージ兼ホビールームとなるもう一室をプラスした、“趣味の基地”としての機能を強化したプランが特徴です。
一般的なガレージアパートは、法規制やコストの都合からビニールクロス仕上げが主流で、「ただのクルマ・バイク置き場」になりがちです。
R65 GLBでは、ガレージ壁面にガルバリウム鋼板を採用。マグネットで工具やパーツをディスプレイしたり、ポスターを貼ったりと、ガレージ全体を“見せるための空間”として使えます。
艶消しブラックの鉄骨フレームと相まって、ワイルドでありながら飽きのこないインダストリアルなガレージ空間を形成。
さらに奥の間仕切りスペースにはソファなどを置くこともでき、メンテナンスの合間にくつろいだり、磨き上げたマシンを眺めながら過ごすための“特等席”として機能します。
R65 GLBは、そんな「オトコの夢」が詰まった趣味重視型ガレージハウスです。
2階部分は、大型の採光窓とフローティングスタイルのキッチンを備えたシンプルなワンルーム空間。
ロフトは就寝スペースとして利用でき、オフホワイトの塗り壁とマットブラックの鉄骨フレームのコントラストが、通常のGLBよりも落ち着いた雰囲気を生み出します。

内部空間は実に豊かです。2Fの吹き抜け空間感は、他の追随を許しません。これは、米軍御用達の曲面屋根『Rスパン』の成せる業で、デイトナハウス×LDKが設計施工し、完成した“世田谷ベース増築時”でも採用したスグレモノです。 最奥のロフトスペースをベッドにすればリビングの空間はさらに開放感を満喫できる場所になります。水周りはロフト下のドア内にまとめられているため、生活感を感じさせません。オシャレな家具やインナーグリーンを配置して、安らぎのひと時を。気分はさながら戦士の休息です。
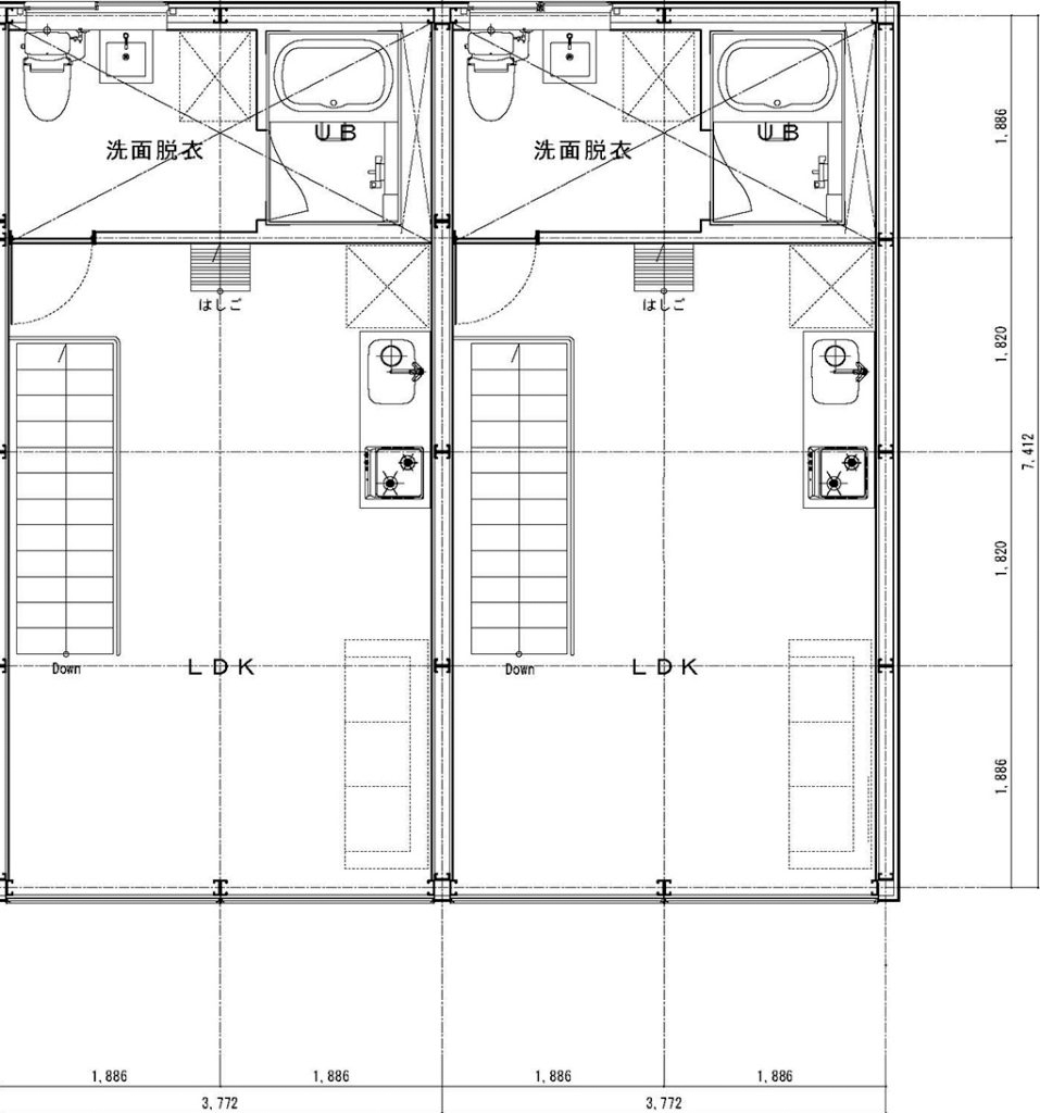
各階平面図


オーナー住居+賃貸GLBという新しい賃貸のカタチ
R65 GLBは、建物右側が2世帯分の賃貸ガレージアパートメント、左側がオーナー住居という構成になっています。
オーナー住居部分はGLBユニットを2つ連結したプランとし、ファミリー世帯でも快適に暮らせるボリュームを確保しました。
この構成により、「自宅+賃貸GLB」という組み合わせでありながら、住宅ローンの利用が可能となる点も大きなメリットです。
オーナー自らがガレージライフを楽しみつつ、賃貸収入も得られる、新しい賃貸住宅のあり方を提示するモデルとなっています。
DATA
| 賃料(Aタイプ) | ¥100,000 |
|---|---|
| 賃料(Bタイプ) | ¥100,000 |
| 面積 | 52.8㎡ |
| 敷金礼金 | 各1ヶ月 |
| 構造 | 軽量鉄骨造 |
| 階健 | 2F+ロフト |
| 築年月 | 2017年 |
| 駐車場 | 別途賃貸スペースあり(4000円) |
| 総戸数 | 2世帯 |
| 住所 | 静岡県浜松市東区笠井町1560-1 |
| その他 | ・退去時ペット消臭料 15,000円(税別)、清掃料 |







