BLACK HANGAR 2315
FULL満室御礼★満室御礼★
待望の都内に誕生した
たった6戸の希少な秘密基地
| 賃料 | 12万5000円 |
|---|---|
| 所在地 | 東京都足立区皿沼2-3-15 |
空室状況
| 部屋 | 面積 | 空室 |
|---|---|---|
| 1 | 2×4/55.90㎡(+ロフト) | — |
| 2 | 2×4/55.90㎡(+ロフト) | — |
| 3 | 2×4/55.90㎡(+ロフト) | — |
| 4 | 2×4/55.90㎡(+ロフト) | — |
| 5 | 2×4/55.90㎡(+ロフト) | — |
| 6 | 2×4/55.90㎡(+ロフト) | — |
ご入居希望、内覧希望、その他のお問い合わせはこちらから
デイトナハウス×LDKが設計施工した“世田谷ベースの増築部分”を横に連結させて構築した賃貸ガレージハウス商品。それが「BLACK HANGARシリーズ」です。
そんなBLACK HANGARをベースとした『BLACK HANGER2315』は、2×4スパンが全6戸と東京では大変希少なGLBです。米軍御用達の曲面屋根『Rスパン』からなる構造により、内部の天井高が開放的な空間を実現できました。1階はガレージ、2階は天井高5mの吹き抜けで解放感溢れるメゾネット付き住居。賃貸住宅としては非常に豊かな造りとなっています。

随所に艶消しの黒い鉄骨素材を露出させたガレージ空間は、他を圧倒する存在感のあるガレージハウスです。壁や吹き抜け天井にも鉄骨を露出させ雰囲気を演出しています。また、このGLBを更に特徴付けるのがガレージと居住空間を繋げる鉄骨の螺旋階段『ダイナソーボーン』です。毎日目に触れる階段がインダストリアルな雰囲気を一層盛り立てます。
BLACK HANGER2315の周辺エリアは、都内でも道幅が広いため運転しやすく、首都高速道路加賀ICまで5分と交通アクセスも良好。都内在住のモーターフリークには住みやすい環境といえます。

夜のガレージ空間は、無機質なブラックとクルマのヘッドライトがとても映え、存在感を与えます。

FASブラケットは、住む人に合わせた空間を構築することが可能。好きな場所、好きな位置に収納やディスプレイを演出することができます。
TYPE
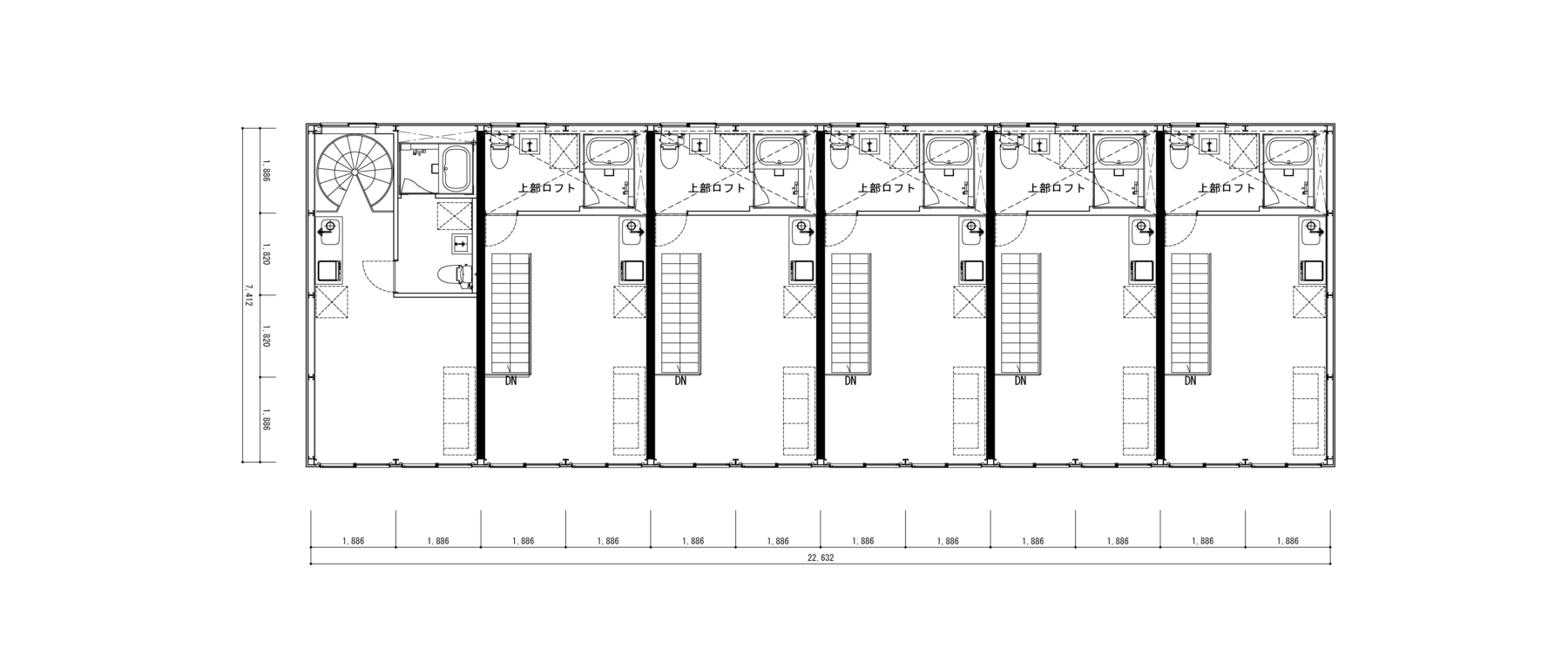
1F PLAN
2F PLAN
DATA
| 賃料 | 12万5000円 |
|---|---|
| 管理費 | 3000円 |
| 礼金 | 1ヵ月 |
| 敷金 | 1ヵ月 |
| 火災保険料 | 2万7000円(2年毎)、事業用は別途見積 |
| 保証委託料 | 住居用:初回賃料等合計の50%+毎月1.5% 事業用:初回賃料等合計の1ヶ月分+年会費(詳細要確認) |
| 文書代 | 5500円(契約時・更新時ともに) |
| 階健 | 2F+ロフト |
| 面積 | 55.90㎡(LDK:20.84㎡ Garage:24.51㎡) |
| 築年月 | 2018年 |
| 総戸数 | 6世帯 |
| 住所 | 東京都足立区皿沼2丁目3番12号 |
| その他 |
駆けつけ(24時間サポート):1万1000円(2年毎)/退去時清掃費用:8万8000円(税込)~/鍵交換費用/4万4000円~(税込)任意/仲介手数料/13万7500円(税込)※賃料1カ月分+消費税 |



