16Base
RENT賃貸募集中★先行予約受付中★
生活利便と落ち着きが揃う
鶴ヶ島のガレージ拠点
| 賃料 | 14万4000円 |
|---|---|
| 所在地 | 埼玉県鶴ヶ島市新町3-7-16 |
空室状況
| 部屋 | 面積 | 空室 |
|---|---|---|
| 01 | 3×3/68.58㎡ | 募集中 |
| 02 | 3×3/68.58㎡ | 募集中 |
ご入居希望、内覧希望、その他のお問い合わせはこちらから
埼玉県鶴ヶ島市。
関越道と圏央道が交差する日本有数の交通結節点で、東西南北への高速移動に優れたロケーションです。
圏央道「鶴ヶ島IC」から2.3km、国道407号からの接続も良好で、都心へも郊外へもストレスなくアクセス可能。
さらに東武越生線「一本松駅」から徒歩圏のため、クルマと電車のどちらも使い分けられる利便性の高いエリアです。
加えて鶴ヶ島市は、住宅地としての落ち着きと、商業施設・生活インフラのバランスが良い点も特長です。
大型ショッピングモール、飲食店、生活サービスが充実しつつ、少し足を伸ばせば自然豊かな公園や川沿いエリアも広がっており、「暮らしやすさ」と「開放感」を両立した環境が魅力です。
そんな鶴ヶ島の穏やかな住宅街に誕生した「16Base」。
交通量が控えめで静かなロケーションは、ガレージライフに不可欠な“愛車と落ち着いて過ごす時間”をしっかり守ってくれます。
住戸前の広いスペースは、追加駐車やメンテナンスにも活用可能で、モーターフリークに嬉しいゆとりがあります。

ガラス面に青空が映り込む外観は、街並みに存在感を放ちながらも、愛車と暮らすガレージライフに調和するデザインとなっています。
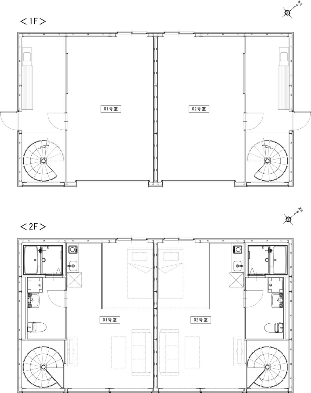
住戸は3スパン幅のワイドプラン。ガレージシャッターも3m超を確保し、車種を選ばず利用できます。
1Fはガレージ+ホビールーム、2Fに生活機能をまとめた構成で、趣味と生活を切り離すことなく楽しめるレイアウトです。
住居部分は、水まわりをコンパクトに配置することで居住スペースを広く確保。
エアコン、ブラインド、照明器具が標準装備されており、家具、家電を持ち込むだけで新生活を始められます。

天井高をしっかり確保し、SUVやキャリア付きの車両も格納可能。アウトドア派にも嬉しい、多目的ガレージ空間です。

ガレージ横には愛車を身近に感じながら、自分だけの時間を過ごせる“ホビールーム”も備わっています。

5mを超える幅の大開口は、明るさと開放感を感じさせます。窓から望む緑あふれる風景と鉄骨の無骨さが生み出すコントラストも16Baseの魅力です。
ACCESS
関越自動車道「鶴ヶ島IC」から約3.6km。圏央道「鶴ヶ島IC」から約2.3km。東武越生線「一本松駅」から徒歩約15分。クルマと電車双方のアクセス性に優れ、日常の移動から週末の遠出まで快適にこなせる立地です。
LOCATION
16Baseが位置する鶴ヶ島市新町周辺は、静かな住宅街が広がる落ち着いたロケーションです。周囲は戸建てや低層住宅が中心で、道路幅にもゆとりがあり、ガレージへの車両出入りがしやすい環境が整っています。
一方で、生活圏にはスーパーや飲食店、ドラッグストアなどが揃い、日々の暮らしを快適に支える利便性も十分。周辺には緑のある散歩道や小さな公園も点在し、住宅街ならではの穏やかな空気感が漂います。「愛車とゆったり向き合う時間」と「日常生活の便利さ」がバランスよく共存する点は、このエリアならではの魅力です。
TYPE
立面図

各階平面図

DATA
| 入居可能日 | 即入居可 |
|---|---|
| 賃料 | 14万4000円 ※平置き駐車場各戸1台含む |
| 管理費 | 5000円 |
| 面積 | 68.58㎡ |
| 総戸数 | 2戸 |
| 所在地 | 埼玉県鶴ヶ島市新町3-7‐16 |
| 敷金 | 1ヶ月 |
| 礼金 | 1ヶ月 |
| 契約期間 | 2年 |
| 契約形態 | 普通借家契約 |
| 火災保険 | 必須 |
|
連帯保証人(保証会社) |
家賃保証会社必須 |
| 設備 | ・リモコン付電動ガレージシャッター ・エアコン2台 ・システムキッチン(IHヒーター1口) ・ユニットバス0.75坪(浴室乾燥換気扇付) ・洗面化粧台600サイズ ・トイレ(シャワー付き) ・ホビールーム内水洗設備付 ・外部散水栓付(専用鍵付き) |
| その他 |
・インターネットは入居者個別契約 |







